Ingatlanok
Szolgáltatásaink
Rólunk
Kapcsolat
HU EN
Hívjon minket!

Használja paraméterezhető keresőnket
Kiadó Eladó
m2
Vissza az ingatlan listához
Eladó / Kiadó

Eladó/kiadó ipari csarnok - Önálló telephely - darupályával

|1.810m2 |információ személyesen

Leírás

Térkép

Fotók

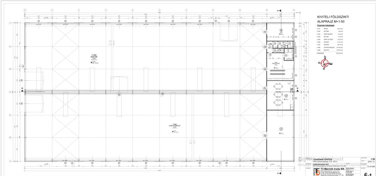
Székesfehérvár határában, a Városkapu Ipari Parkban 1810m2 alapterületű, önálló ipari ingatlan eladó/kiadó!

A telephely a 8-as főút mentén található, közigazgatásilag Iszkaszentgyörgyhöz tartozik. Az ingatlan a főútról közvetlen le-, és felkanyarodósávon megközelíthető. A 15km-re található M7-es autópálya a városi forgalom teljes elkerülésével, gyorsforgalmi úton elérhető. A Városkapu Ipari Park rendelkezik a főútról mindkét irányba történő le-, és felhajtási lehetőséggel, kiépített kanyarodósávokkal. A terültetre történő behajtás súlykorlátozás nélkül biztosított.

Jellemzők:
- telekterület: 4867m2
- csarnok alapterület: 1810m2
- iroda, szoc. terület: 110m2 (+89m2 emelet ráépíthető)

- acélváz szerkezet + szendvicspanel

- fűtés a csarnoktérben: gázüzemű sötétsugárzók
- fűtés az irodákban: padlófűtés
- melegvizet villanybojler biztosítja
- áramkapacitás: 3x100A
- csatorna: zárt rendszerű emésztővel (5 m3)
- gáz: tartályos
- 2db darupálya, mely 5t teherbírású híddaru működtetésére alkalmas
- padozat teherbírása: 5t/m2
- belmagasság: 6-8m

- kapuk mérete: 4x4,5m (3 db szintbeli kapu)

Övezeti besorolás: Gksz-5 (általános gazdasági)
-  max. beépíthetőség: 40%
-  min. zöldfelület: 40%
-  legkisebb kialakítható telekméret: 5000m2
-  építménymagasság: 8m
-  építményadó: nincs

Építés éve: 2019.


Eladási ár: 650 millió Ft + ÁFA

Bérleti díj: 4,5 EUR/m2 + ÁFA