Properties
Our services
About us
Contact us
HU EN
Call us!

Search by parameter
To Let For Sale
m2
Back to property list
To Let

Industrial property for rent - PXG C/D buildings

|269 - - m2 |price on application

Description

Location on map

Open gallery

New logistics and production halls are available in Bárándi Street, Székesfehérvár.

Building C - available units

C04 - 414.05 m2 hall + 15.91 m2 office - air conditioning

C06 - 414.08 m2 hall + 15.91 m2 office - air conditioning

C07 - 710.40 m2 hall + 15.91 m2 office - gas

C08 - 572.13 m2 hall + 16.36 m2 office - gas - crane accessible

C09 - 418.88 m² hall + 15.91 m² office - air conditioning - crane accessible

C10 - 272.38 m² hall + 15.91 m² office - air conditioning - crane accessible

C12 - 269.12 m² hall + 15.91 m² office - air conditioning

C13 - 414.08 m² hall + 15.91 m² office - air conditioning

C14 - 414.08 m² hall + 15.91 m² office - air conditioning

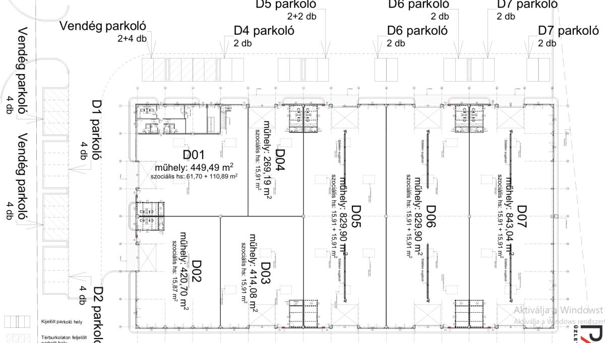
Building D - available units

D02 - 420.70 m2 hall + 15.87 m2 office - air conditioning

D03 - 414.08 m2 hall + 15.91 m2 office - air conditioning

D04 - 269.19 m² hall + 15.91 m² office - air conditioning

D05 - 829.90 m² hall + 15.91 m² + 15.91 m² office - gas

D06 - 829.90 m2 hall + 15.91 m2 + 15.91 m2 office - gas

Technical and engineering parameters

The newly built industrial property is located in the industrial and commercial zone of the city, in the immediate vicinity of the MOL Arena Sóstó Stadium. Both the city center and the M7 motorway are only a few minutes away. The property is easily accessible by truck, car and public transport. Following the construction of the Seregélyesi út-Sárkeresztúri út connecting road (southern connecting road), the site's road connections have improved even further.

PXG building characteristics:

Total leasable area of the building: Hall C - 6000 m2, Hall D - 4000 m2
Internal height: 6.5-7 m
Thermally insulated, sectional, electrically operated, level industrial doors (5x4.5 m)
Parking: private paved parking spaces directly in front of the halls
Industrial floor load capacity: 5 T/m2
3-phase (3x32A) industrial power supply, expandable if required
Heated units
18m2 office with internet access for each hall unit
Common area: shower, meeting room, dining room with kitchen, use of which is included in the rent.

Hall rent: 3.9-4.5 Euro/m2 + VAT/month
Office rent: 6.5 Euro/m2 + VAT/month
Operating fee: €0.89/m² + VAT/month

C03 and D01 office rental fee: €10.2/m² - VAT/month